Doppelhaus mit Flachdacherker und Wintergarten

ca. 128 m² Wohnfläche pro Haushälfte

Erdgeschoss: offener Koch-/Wohnbereich, Esszimmer im Wintergarten, HWR, Gäste-WC mit Dusche

 

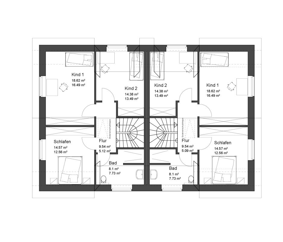
Obergeschoss: 3 Zimmer, Badezimmer

 

mögliche Frontansicht

 

mögliche Rückansicht