klassisches Satteldach-Haus trifft auf Flachdacherker

ca. 170 m² Wohnfläche

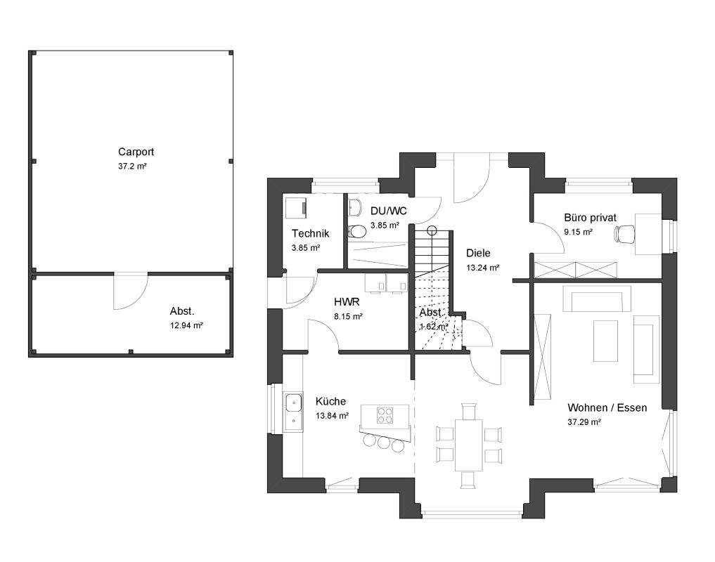
Erdgeschoss: offener Wohn- / Ess- und Kochbereich, HWR, separater Technikraum, Gäste-WC und Büro

 

 

Obergeschoss: 2 Zimmer, Schlafzimmer mit Ankleide und Badezimmer

 

mögliche Frontansicht

 

mögliche Rückansicht