Doppelhaus mit Erkern

ca. 100 m² Wohnfläche pro Haushälfte

Erdgeschoss: offener Wohn- / Ess- und Kochbereich, HWR, Gäste-WC und Garderobe

 

 

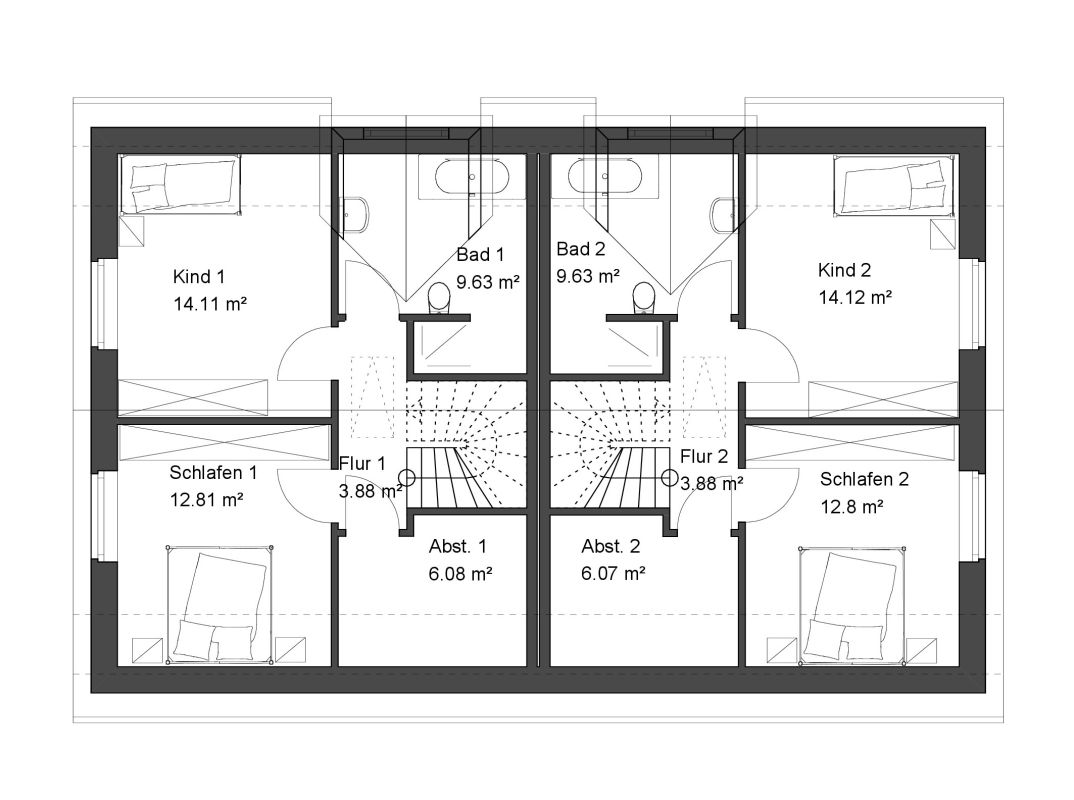
Obergeschoss: 2 Zimmer, Badezimmer und Abstellraum

 

mögliche Frontansicht

 

mögliche Rückansicht